Tuin inspiratie
Klassieke achtertuin met trampoline, tuinhuis en overkapping
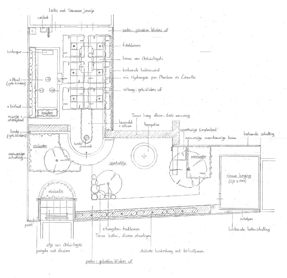
In het historische hart van Middelburg ligt deze klassieke tuin die perfect aansluit bij het monumentale karakter van de woning. Deze tuin voor het hele gezin combineert klassieke elementen met kindvriendelijke aspecten.
De paden van gebakken klinkers verbinden de verschillende tuindelen met elkaar. Het gevarieerde beplantingsplan met groenblijvers zorgt het hele jaar door voor een levendige uitstraling, daarnaast zorgen de fruitbomen voor het nodige fruit.
De hoogteverschillen in de tuin creëren een speels effect en de klassieke borders geven de tuin een tijdloze uitstraling. Het tuinhuis biedt praktische bergruimte zonder afbreuk te doen aan het historische karakter van deze stadstuin.
Wij realiseren uw droomtuin
Vind een Dutch Quality Gardens hovenier bij u in de buurt
Mocking Hoveniers
Visio Vireo Tuinen
Hans Linders Hovenier
Bosman Tuinadvies
De Brinker Tuinen
Erica Tuinen
Hoveniersbedrijf ‘t Höfke
Van Ooijen's Hoveniers
Sparq Tuinen
Rob Mocking
Mocking Hoveniers
Mocking Hoveniers
Mocking Hoveniers is als Dutch Quality Gardens hovenier actief in de provincie Utrecht en binnen de Utrechtse Heuvelrug: Amerongen, Doorn, Drie-Bergen-Rijssenburg, Leersum, Maarn en Wijk bij Duurstede maar ook Zeist, Houten en Cothen.
Benieuwd wat Mocking Hoveniers voor u kan betekenen? Neem contact op.
Arno Ooms en John Bijlsma
Visio Vireo Tuinen
Visio Vireo Tuinen
Visio Vireo Tuinen is als Dutch Quality Gardens hovenier actief in West-Brabant (o.a. Steenbergen, Bergen op Zoom, Roosendaal en Breda), het oosten van Zeeland (o.a. Tholen, Yerseke en Kruiningen) en het zuiden van Zuid-Holland (o.a. Hoeksche Waard en Goeree-Overflakkee).
Benieuwd wat Visio Vireo Tuinen voor u kan betekenen? Neem contact op.
Hans Linders
Hans Linders Hovenier
Hans Linders Hovenier
Hans Linders Hovenier is actief als Dutch Quality Gardens hovenier in in Midden-Limburg (o.a. Roermond, Sint-Joost, Echt, Maasbracht, Montfort, Linne, Sittard en Weert).
Benieuwd wat Hans Linders Hovenier voor u kan betekenen? Neem contact op.
Niels, Jan en Jochem
Bosman Tuinadvies
Bosman Tuinadvies
Bosman Tuinadvies is actief als Dutch Quality Gardens hovenier in de provincie Zeeland op Walcheren (o.a. in Middelburg, Vlissingen, Zoutelande, Koudekerke, Dishoek, Oostkapelle, Westkapelle en Domburg).
Benieuwd wat Bosman Tuinadvies voor u kan betekenen? Neem contact op.
Marcel Nieuwenhuis
De Brinker Tuinen
De Brinker Tuinen
De Brinker Tuinen is actief als Dutch Quality Gardens hovenier in de provincie Overijssel in de regio Deventer, Zutphen en Apeldoorn (o.a. Loo, Lettele, Bathem, Deventer, Gorssel, Apeldoorn, Zutphen, Twello en Schalkhaar).
Benieuwd wat De Brinker Tuinen voor u kan betekenen? Neem contact op.
Henry Mulders en Tom Jacobs
Erica Tuinen
Erica Tuinen
Erica Tuinen is als Dutch Quality Gardens hovenier actief in de Noord-Limburg (o.a. in Deurne, Horst aan de Maas, Panningen, Venlo, America, Sevenum en Venray).
Benieuwd wat Erica Tuinen voor u kunnen betekenen? Neem contact op.
Margo Bouwens
Hoveniersbedrijf ‘t Höfke
Hoveniersbedrijf ‘t Höfke
Hoveniersbedrijf ’t Höfke is actief als Dutch Quality Gardens hovenier in Noord-Limburg en Land van Cuijk (o.a. in Merselo, Venray, Overloon, Boxmeer, Horst, Helmond, Nijmegen, Deurne, Wijchen en Venlo).
Benieuwd wat Hoveniersbedrijf ‘t Höfke voor u kunnen betekenen? Neem contact op.
Rik de Jong
Van Ooijen's Hoveniers
Van Ooijen's Hoveniers
Van Ooijen’s Hoveniers is als Dutch Quality Gardens hovenier actief in de provincie Gelderland, in Maas en Waal (o.a. Druten en Appeltern) en in regio Arnhem en Nijmegen (o.a. in Beuningen, Nijmegen, Arnhem, Tiel, Oss en Wijchen). Daarnaast werkt van Ooijen’s Hoveniers in de omgeving van ‘s-Hertogenbosch.
Benieuwd wat Van Ooijen's Hoveniers voor u kan betekenen? Neem contact op.
Gert-Jan Schouwenaar
Sparq Tuinen
Sparq Tuinen
Sparq Tuinen is actief als Dutch Quality Gardens tuinarchitect en hovenier in de provincie Noord-Brabant in de regio Eindhoven, Den Bosch en Tilburg.
Benieuwd wat Sparq Tuinen voor u kan betekenen? Neem contact op.
Dutch Quality Gardens
In uw regio werken we met een netwerk van tuinarchitecten en hoveniers die werken volgens de kwaliteit van Dutch Quality Gardens. Neem contact met ons op en wij zorgen voor de juiste match.
Benieuwd wat wij voor u kunnen betekenen? Neem contact op.
Benieuwd wat we voor u kunnen betekenen?
Neem contact op met Dutch Quality Gardens hoveniers.

